Мы используем файлы cookie, чтобы обеспечить удобство работы с сайтом.

ЖК Вереск 103 м²

103 м²
2024 год

Стиль и свобода: квартира холостяка с подвесной кухней, камином и кожаными акцентами

Дизайн ориентирован на молодого человека с чувством стиля и пониманием современных тенденций. Это лаконичный, современный и одновременно уютный интерьер, в котором использованы новейшие отделочные материалы.
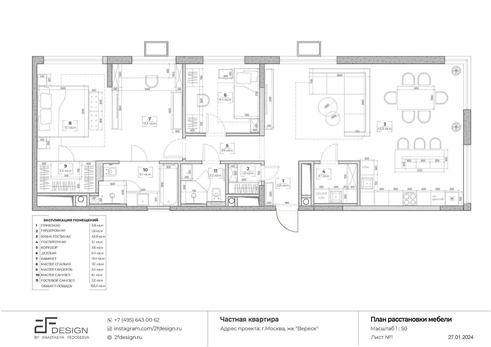
Кухня-гостиная с большой обеденной зоной, спальня, объединенная с кабинетом через сквозной камин, детская «на будущее», постирочная, гардеробы и несколько санузлов – все это нам удалось разместить при объединении двух квартир.

Планировка

Дизайн интерьера кухни-гостиной холостяка с подвесной кухней, камином и кожаными акцентами
В отделке кухни-гостиной мы применили стеновые панели нового поколения бренда New Wall Panels – это панели из бамбука, которые легко монтируются, а разнообразная палитра позволяет создать абсолютно любой дизайн.

Интерьер

Кухня-гостиная

В просторной кухне-гостиной каждый элемент работает на создание единого стиля. Современное панно, креативная скульптура и подвесные светильники на ремнях - не просто отдельные предметы, а части цельной композиции, которые вместе создают гармоничное и стильное пространство.
Дизайн интерьера кухни-гостиной холостяка с подвесной кухней, камином и кожаными акцентами
Небольшой холл продуман до мелочей. За лаконичной потайной дверью скрывается вместительный гардероб, предназначенный для хранения верхней одежды, что позволяет максимально эффективно использовать пространство.

Холл

Дизайн интерьера холла холостяка с подвесной кухней, камином и кожаными акцентами
Дизайн интерьера холла холостяка с подвесной кухней, камином и кожаными акцентами
Дизайн интерьера спальни холостяка с подвесной кухней, камином и кожаными акцентами
Мастер-блок, сочетающий в себе уютный кабинет, вместительный гардероб и просторный санузел, выполнен в светлых спокойных тонах. Множество вариантов регулируемой подсветки позволяют создавать индивидуальную атмосферу в каждом из помещений, обеспечивая комфорт и настрой на нужную волну.

Мастер-блок

Сквозной камин, разделяющий кабинет и спальню, становится не только источником тепла и уюта, но и стильным элементом дизайна. Над ним парит подвесной шкаф, воплощающий принципы современной функциональности.

Встроенный телевизор органично интегрирован в его фасад, а продуманная система хранения позволяет оптимально использовать пространство и скрыть все лишнее.

Камин

Дизайн интерьера камина холостяка с подвесной кухней, камином и кожаными акцентами
Дизайн интерьера гардеробной холостяка с подвесной кухней, камином и кожаными акцентами
Стильная перегородка из тонированного стекла служит элегантным разделителем между спальней и гардеробной, обеспечивая необходимую приватность, не утяжеляя при этом интерьер. Ее приглушенный оттенок создает атмосферу уюта и спокойствия, подчеркивая индивидуальность пространства.

Гардероб

Санузел, выполненный в современном стиле, – это образец лаконичности и функциональности. Четкие линии, сдержанная цветовая палитра и отсутствие лишних деталей создают ощущение простора и чистоты.

Санузел

Дизайн интерьера санузла холостяка с подвесной кухней, камином и кожаными акцентами
Дизайн интерьера санузла холостяка с подвесной кухней, камином и кожаными акцентами
Дизайн интерьер детской комнаты холостяка
Эта детская комната – воплощение гибкости и адаптивности. Сейчас она нейтральна, но легко трансформируется под индивидуальность будущего владельца, будь то мальчик или девочка, благодаря смене декоративных элементов и цветового оформления.

Детская комната

Дизайн интерьера санузла холостяка
Дизайн интерьера санузла холостяка
Дизайн небольшого гостевого санузла выгодно подчеркнут сочетанием двух различных видов керамогранита, создавая гармоничную и элегантную атмосферу.

Гостевой санузел

Оцениваем по стоимости, срокам, понимание этапов строительства, умение читать чертежи, в каких объектах работали и другие нюансы.
2. Критерии выбора ремонтной бригады: от цен до сработанности
6:26
6 основных факторов выбора – от цен, портфолио и профессионализма до отзывов и личной симпатии.
3. Выбор дизайн-студии: как не ошибиться в самом главном
8:06
Неоткрывающиеся окна, дырки в полу, неработающая сантехника и другие типичные ошибки, которые можно избежать ещё на этапе проектирования.
1. Дизайн-проект
8:13
Как избежать 80% ошибок при выборе дизайн-студии и в будущей реализации

Похожие проекты

Следующий проект
Предыдущий проект

Похожие проекты