Мы используем файлы cookie, чтобы обеспечить удобство работы с сайтом.
650 м²
2024 год

Лаунж-зона в каминной комнате.
Ар-деко в современном прочтении с синими акцентами в интерьере

Запрос заказчика был на яркий индивидуальный проект, но при этом он должен был оставаться довольно строгим и выдержанным по стилю, приближенному к ар-деко.
В доме несколько этажей, которые между собой соединяет не только лестница, но и лифт. Также в доме есть семейная гостиная для более обособленного уединения, и зона бассейна и спа для отдыха.

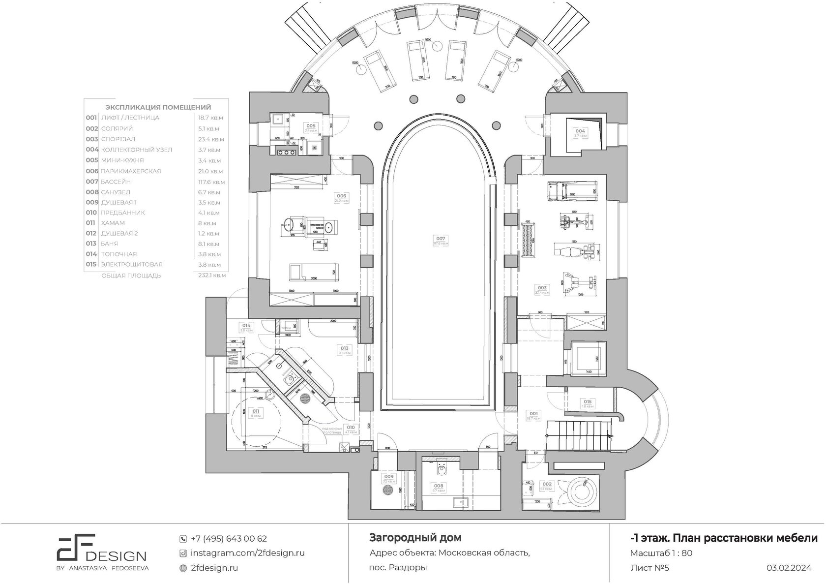
Планировки

Дизайн интерьера лаунж-зоны в каминной в стиле ар-деко
Интерьер, оформленный в стиле ар-деко, сочетает в себе элегантные линии и геометрические формы, придавая пространству изысканный и современный вид. Синие акценты выступают в роли ярких фокусных элементов, добавляя глубину и динамичность в общую палитру, что создает гармоничное взаимодействие между роскошью и современными тенденциями.

Интерьер

Входная зона

Интерьер входной зоны создает первое впечатление о доме, где современная консоль в золотом исполнении и шикарная люстра в стиле ар-деко задают тон всему пространству. Синие акценты в виде пуфов не только привлекают внимание, но и предвосхищают цветовую палитру, которая будет продолжаться в других помещениях.
Дизайн интерьера входной зоны в стиле ар-деко
Дизайн интерьера входной зоны в стиле ар-деко
Холл в доме играет ключевую роль как связующее звено между различными помещениями, создавая гармоничное единство всего пространства. Его продуманная планировка и стильное оформление обеспечивают плавный переход от одной зоны к другой.

Холл

Дизайн интерьера холла в стиле ар-деко
Дизайн интерьера гостиной в стиле ар-деко
Из холла открывается великолепный вид на гостиную зону, где второй свет создает ощущение простора и легкости. Большие окна, которые заполняют помещение естественным светом, ведут на веранду, обеспечивая плавный переход между внутренним пространством и окружением.

Гостиная

Столовая выделяется своей элегантностью, в которой парящая люстра становится настоящей изюминкой. Ее изысканный дизайн и мягкое освещение создают атмосферу уюта и торжественности, что идеально подходит для семейных обедов и праздников.

Столовая

Дизайн интерьера столовой в стиле ар-деко
Дизайн интерьера кухни в стиле ар-деко
Кухня, с разнообразием материалов, превращается в уникальную зону для готовки и общения, где процесс приготовления пищи становится настоящим искусством.

Кухня

Лаунж-зона в каминной — центр уюта и расслабления. Светлые оттенки создают атмосферу безопасности и тепла. Большой удобный диван располагает к комфортному время препровождению.

Лаунж-зона в каминной

Дизайн интерьера холла в стиле ар-деко
Холл второго этажа впечатляет своим изысканным дизайном, где панно на стенах второго света гармонично подчеркивает стиль ар-деко, известный своей элегантностью и геометрическими формами.

Холл второго этажа

Гостевой санузел, обладающий эффектом "вау", действительно становится настоящим произведением искусства. Стены, оформленные полудрагоценными камнями, создают уникальную текстуру, которая притягивает взгляды и дарит ощущение роскоши. Дизайнерская консоль под раковину, выполненная в современном стиле, становится центральным элементом пространства.

Гостевой санузел

Дизайн интерьера гостевого санузла в стиле ар-деко
Дизайн интерьера гостевого санузла в стиле ар-деко
Спальня, оформленная в теплых кораллово-бежевых оттенках, служит уютным уголком, который выделяется на фоне общей цветовой палитры дома. Эти мягкие и естественные цвета создают атмосферу тепла и спокойствия, способствуя расслаблению и комфортному отдыху.

Спальня
с гардеробом

Дизайн интерьера спальни с гардеробом в стиле ар-деко
Дизайн интерьера бассейна в стиле ар-деко
Бассейн с 3D-экраном вместо потолка создает уникальный эффект открытого пространства, превращая обычное помещение в захватывающее место для отдыха и развлечений. Такой экран создает атмосферу, словно вы находитесь на свежем воздухе, даже находясь в закрытом помещении.

Бассейн

Оцениваем по стоимости, срокам, понимание этапов строительства, умение читать чертежи, в каких объектах работали и другие нюансы.
2. Критерии выбора ремонтной бригады: от цен до сработанности
6:26
6 основных факторов выбора – от цен, портфолио и профессионализма до отзывов и личной симпатии.
3. Выбор дизайн-студии: как не ошибиться в самом главном
8:06
Неоткрывающиеся окна, дырки в полу, неработающая сантехника и другие типичные ошибки, которые можно избежать ещё на этапе проектирования.
1. Дизайн-проект
8:13
Как избежать 80% ошибок при выборе дизайн-студии и в будущей реализации

Похожие проекты

Следующий проект
Предыдущий проект

Похожие проекты